Projet de maison à Pensier

Projet de maison à Pensier

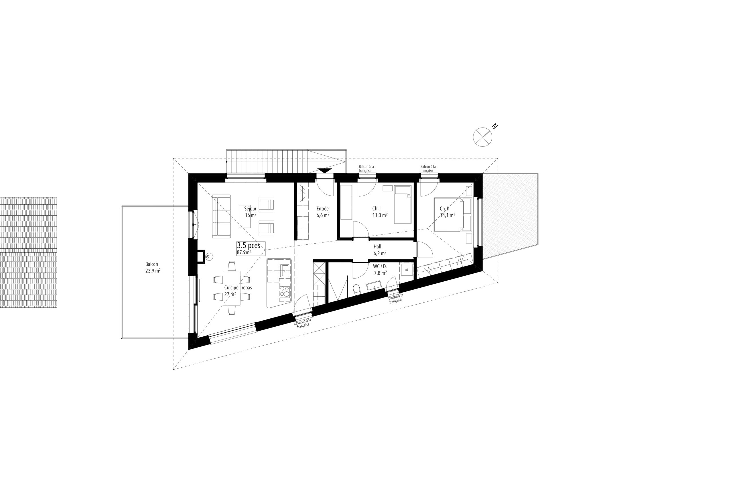
Le projet en détail

Une maison en ossature bois qui accueillera deux appartements de 3.5 pièces. Les façades en bardage bois habillent le bâtiment avec sobriété et la charpente apparente à l’étage donne du caractère à cet appartement.

Situé à Pensier, dans le canton de Fribourg, ce projet a été entièrement conçu et modélisé en 3D par notre bureau d’architecture — de l’esquisse jusqu’au rendu final.

Travaux réalisés

  • Architecture